Comment installer plancher chauffant hydraulique étape par étape
Installer un plancher chauffant est tout à fait réalisable avec une bonne méthode et une certaine rigueur. Cet article détaille chaque étape de l'installation d'un plancher chauffant hydraulique, allant du calepinage jusqu'à la mise en service. Vous y découvrirez comment préparer correctement le support afin d'optimiser votre chauffage au sol.
Étape par étape pour planchers chauffants
L'installation d'un plancher chauffant obéit à une séquence précise pour garantir des performances optimales. Chaque phase est essentielle, depuis la simple vérification du matériel jusqu'à la mise en route du système. Pour simplifier la tâche, un kit plancher chauffant constitue souvent une excellente solution tout-en-un.

Préparer support et isolation
Avant de commencer l'installation d'un plancher chauffant, assurez-vous d'abord que votre chaudière ou votre pompe à chaleur est bien compatible. Mesurez avec précision l'espace disponible et prévoyez environ une quinzaine de centimètres pour l'isolation et la chape.
Nettoyez minutieusement le sol pour éliminer toute trace de poussière, puis vérifiez sa planéité à l'aide d'un niveau. Appliquez un enduit de ragréage sur les zones irrégulières pour obtenir une surface bien lisse. Sur les supports humides, il est également recommandé de poser un pare-vapeur afin de prévenir les infiltrations.
Disposez les panneaux isolants en quinconce et installez une bande de désolidarisation sur tout le pourtour de la pièce. Cette précaution délimite un joint de dilatation essentiel pour éviter les fissures dues aux variations de température. Tout plancher chauffant hydraulique nécessite cette attention particulière pour assurer sa longévité.
Poser tubes et collecteur
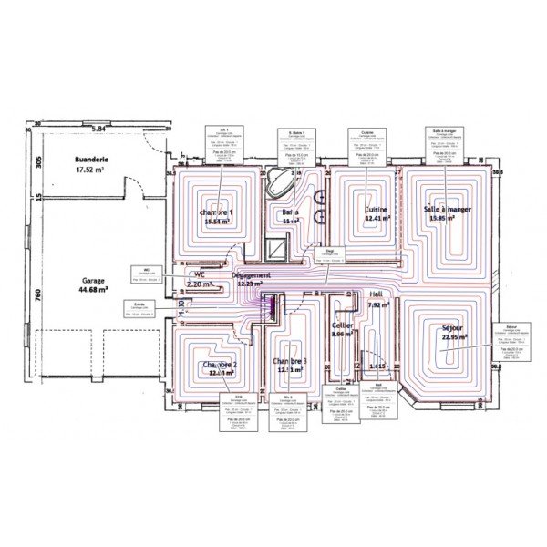
En suivant le schéma plancher chauffant hydraulique, positionnez les tuyaux en veillant à conserver un écartement régulier. Prévoyez généralement entre 5 et 7 mètres de tube par mètre carré afin d’assurer une bonne répartition thermique. Notez également qu'une boucle ne devrait pas dépasser 120 mètres pour permettre une circulation fluide.
Fixez délicatement les tubes à l’aide d’agrafes spéciales, en prenant soin de ne pas les pincer. Installez ensuite le collecteur dans un endroit central et facilement accessible, ce qui simplifiera les futurs réglages du réseau et facilitera l’équilibrage de la distribution d'eau chaude dans l'habitation.
Tester, couler chape, sécher
Avant de procéder au coulage du béton, il est impératif de vérifier l'étanchéité du circuit en le testant sous pression. Purgez ensuite chaque boucle de son air en la remplissant avec de l’eau ou un fluide antigel approprié. Ce contrôle rigoureux permet d’identifier et de prévenir d'éventuelles fuites irréversibles sous la dalle.
Coulez la chape de recouvrement tout en maintenant les tuyaux sous pression afin d’éviter tout écrasement. Renforcez l’ensemble avec un treillis anti-retrait pour consolider la structure et limiter significativement le risque de fissuration. Enfin, laissez le sol sécher complètement à l'abri des courants d'air avant d'enclencher le chauffage.
Les planchers chauffants : ce qu'il faut savoir
Le choix de l'équipement adéquat est déterminant pour la réussite de votre installation de planchers chauffants. Opter pour un kit complet prêt à poser permet d'éviter les oublis gênants et simplifie grandement la mise en place. TNC France propose une étude personnalisée pour bien dimensionner votre plancher chauffant hydraulique.

Matériel et outils indispensables
Les outils nécessaires pour installer un plancher chauffant incluent un niveau laser ainsi qu'une agrafeuse adaptée. Vous aurez également besoin d'une pince coupe-tube, d'une pompe d'épreuve et de clés pour chaque raccordement. Ces éléments garantissent une installation étanche et durable pour votre chauffage au sol.
- Tubes PER DN16 : Prévoyez 5 à 7 mètres par m². Utilisez du PER standard, du BAO pour les longues boucles ou du multicouche en rénovation.
- Collecteur inox ou polymère : Installez-en un par étage avec des débitmètres. Ils permettent de régler chaque boucle entre 0,5 et 5 L/min.
- Agrafes courtes 55 mm : Comptez environ 300 pièces pour 30 m². Fixez les tubes tous les 30 cm pour éviter de les pincer.
- Aquastat de sécurité : Réglez-le entre 35 et 45°C selon le revêtement. Un carrelage supporte 45°C, contre 35°C maximum pour du parquet.
Ajoutez également des panneaux isolants, un film polyane et une bande périphérique pour assurer une bonne désolidarisation. Un kit certifié CSTB garantit la sécurité totale de tous les composants. N'omettez pas le treillis anti-retrait ainsi que les adjuvants spécifiques pour la chape.
Équipements du collecteur
Voici ce qu'il faut prévoir pour installer correctement le collecteur de votre chauffage au sol. Il vous faudra des vannes avec thermomètre intégré, des purgeurs et des robinets d'équilibrage. Conservez toujours un accès libre à l'appareil pour faciliter la maintenance future et le désembouage.
Fixez ce collecteur solidement, à au moins 50 cm des premières boucles du réseau. Positionnez-le de préférence au centre pour équilibrer les distances vers les zones les plus éloignées. Si la superficie dépasse 100 m², l'installation de deux répartiteurs réduit efficacement les pertes de charge.
Entretien et sécurité
Dès la mise en place de votre circuit hydraulique, maintenez une pression constante de 1,5 à 2 bars. Surveillez l'absence de condensation et vérifiez le thermostat lors de la mise en service. L'ajout d'antigel glycol ou d'eau déminéralisée limite fortement la corrosion interne.
Un entretien rigoureux prolonge considérablement la durée de vie de votre système thermique. Purgez l'air chaque année, contrôlez la pression et prévoyez un désembouage complet tous les 5 à 10 ans. Ces actions préservent un rendement optimal et préviennent les fuites prématurées du réseau.
Produits recommandés
Étape de mise en service et planchers chauffants
Cette phase finale de mise en service est déterminante pour garantir l'efficacité de vos planchers chauffants. Une montée en température progressive et un équilibrage soigné préviennent les chocs thermiques néfastes, vous permettant d'atteindre rapidement la température idéale en fonction de votre type de dalle.

Démarrage et réglages
Avant de démarrer l'installation, attendez le séchage complet du support afin d’optimiser le temps de chauffe plancher hydraulique. Le montage plancher chauffant hydraulique nécessite ensuite une augmentation prudente de la température. Commencez à 20 °C, puis augmentez-la progressivement pour consolider la chape sans provoquer de fissures.
- Purge d'air complète : le remplissage se fait boucle par boucle afin d'éliminer toutes les bulles d'air avant la montée en température.
- Équilibrage des débits : ajustez chaque circuit à l’aide des débitmètres du collecteur pour éviter d'augmenter inutilement le temps pose plancher chauffant.
- Contrôles quotidiens : vérifiez la pression et l'absence de condensation, car toute anomalie indique un problème à résoudre.
Évitez impérativement les chocs thermiques susceptibles d'engendrer des fissures. Privilégiez une montée en température très progressive, étalée sur deux semaines, plutôt qu'un démarrage brutal. Surveillez également les températures dans chaque zone pour repérer d'éventuels déséquilibres.
Temps, coûts, durabilité
La durée du temps pose plancher chauffant hydraulique varie en fonction de la surface et de la complexité du projet. En incluant le séchage et la préparation, l'installation totale peut prendre plusieurs semaines. Néanmoins, pour une grande pièce bien équilibrée, cette attente initiale est largement justifiée pour un fonctionnement optimal.
| Éléments | Dalle mince (30-60mm) | Dalle traditionnelle (5-20cm) |
| Temps atteinte consigne | 15-45 minutes | 6-12 heures |
| Réactivité | Très élevée, idéale ajustements fréquents | Forte inertie, usage continu |
| Revêtement optimal | Carrelage, béton poli | Carrelage, parquet contrecollé |
| Coût matériel €/m² | 35-50 € | 25-60 € |
Le coût des matériaux pour un plancher chauffant hydraulique se situe généralement entre 25 et 60 € par mètre carré, en fonction de l'isolant choisi. Un revêtement adapté comme le carrelage réduit sensiblement la durée de chauffe quotidienne. Pour un rendement optimal, privilégiez toujours un revêtement à bonne conductivité thermique et des boucles de petite longueur.
Foire aux questions
Oui, un bon bricoleur peut parfaitement installer un plancher chauffant par ses propres moyens. Des kits tout-en-un, incluant des éléments essentiels comme le collecteur et le tube PER, sont disponibles sur le marché.
Chaque étape du processus, de la préparation du support à la mise en service, est accessible. Pour les surfaces dépassant 60 m², il est toutefois recommandé de faire réaliser une étude professionnelle afin d'éviter toute erreur de dimensionnement.
Le coût d’un plancher chauffant hydraulique varie considérablement en fonction des composants sélectionnés et du choix de la main-d'œuvre. Le prix du matériel seul oscille généralement entre 25 et 60 € par m², tandis que l'intervention d'un professionnel pour la pose ajoutera entre 60 et 120 € par m².
Le budget final est aussi influencé par le type d'isolant, la nature de la dalle et le revêtement de sol choisi. Malgré un investissement initial important, les économies d'énergie réalisées permettent d’amortir ce coût sur une période d'environ quinze ans.
Une fois correctement installé, un plancher chauffant à eau a une durée de vie qui peut aisément excéder 50 ans. Cette longue durée de vie est directement liée à la qualité de l’installation initiale et à celle du fluide caloporteur utilisé dans le circuit.
Un entretien régulier, comprenant notamment un désembouage tous les cinq à dix ans, permet de prévenir efficacement la corrosion. Généralement, les tubes PER intégrés dans la chape restent en parfait état, et seules les pièces principales du système nécessiteront un remplacement après plusieurs décennies.
Articles similaires
Chape traditionnelle et plancher chauffant RT 2020 : guide complet
Chape traditionnelle ou liquide pour votre plancher chauffant traditionnel RT 2020 ? Comparez les solutions, le calepinage, l'épaisseur et le séchage conformes au DTU 65.14.
Choix tubes chauffage : guide plomberie pour bien décider
Découvrez notre guide plomberie complet sur le choix tubes chauffage. Comparez les types de tuyaux (PER, multicouche, cuivre, acier) pour optimiser votre système de chauffage. Conseils plomberie et critères essentiels inclus.